Proyecto, Documentación BIM y Dirección de Obra.
2.655,55
2024
La tendencia actual en las ciudades del mundo es promover la integración, favoreciendo la vitalidad urbana. La ciudad policéntrica, donde la mixtura de usos, es decir, la convivencia de trabajo, cultura, esparcimiento, comercio y vivienda ya no está limitada al micro y macrocentro, sino que se extiende a los distintos barrios generando polos de atracción por toda la ciudad. TRUST INN Palermo está pensado y concebido en base a este nuevo paradigma y está ubicado en el barrio más emblemático de la ciudad.
Palermo Hollywood, barrio emblemático y usina cultural de la Ciudad. En él conviven productoras independientes, agencias de publicidad, estudios de radio y televisión. La creatividad de la gente que lo habita día y noche hace que se encuentre en estado permanente evolución y renovación.
Poblado de bares y restaurantes de variada oferta gastronómica, sus mesas están frecuentadas por actores, periodistas, artistas y turistas que concurren como lógica consecuencia de encontrar en sus calles lo más sofisticado de la ciudad.
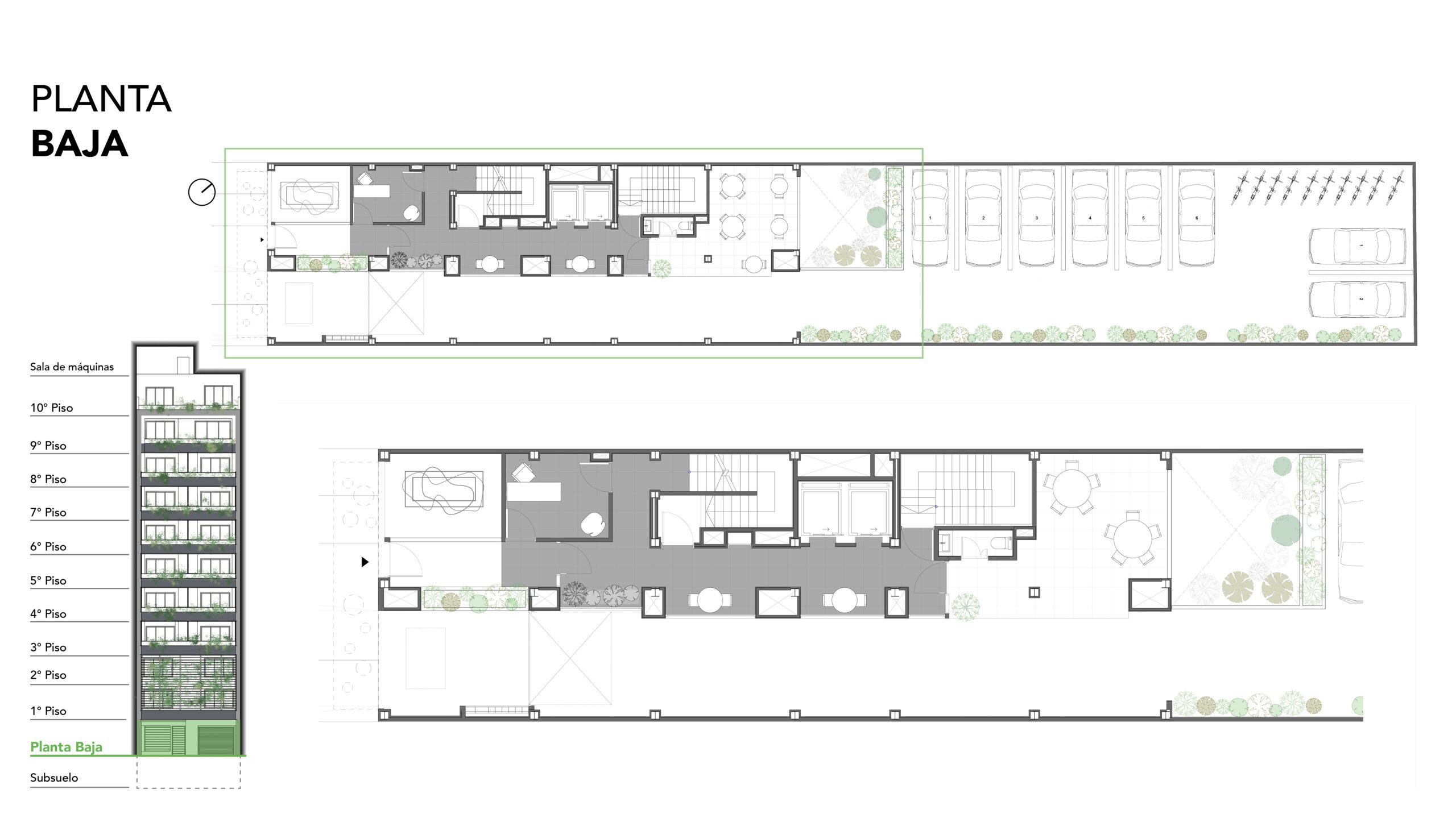
En lo más pujante de Palermo Hollywood proyectamos y desarrollamos TRUST INN Palermo, un edificio de gran calidad constructiva y con características sustentables que lo hacen único





























