Proyecto, Documentación BIM y Dirección de Obra.
1.236
2024
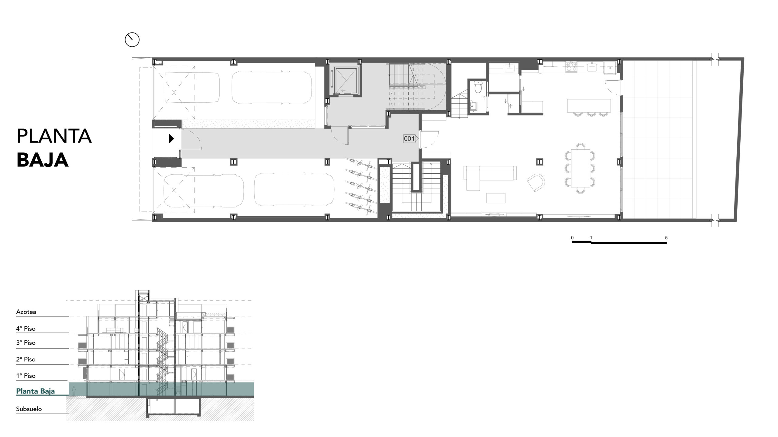
En el barrio de Villa Crespo, entre Av. Warnes y Padilla, proyectamos un edificio que se integra al entorno existente con propuestas de vanguardia. Diseño minimalista y elegante, sumado a la innovación de la construcción industrializada, asegura precisión, calidad, sustentabilidad y confort.
El proyecto se encuentra a pocos metros de reconocidos bares y restaurants que enfatizan la identidad del barrio e invitan a conocer y formar parte de la comunidad. Su cercanía con el Parque Centenario, un paisaje urbano-natural, es ideal para tomarse una pausa, realizar caminatas o diversos ejercicios.
Cabe destacar también, la proximidad a la Línea B de subte de la ciudad, líneas de colectivo y bicisendas.





















